Projekt domu APS 242 LUA1274

kontakt - projekty domów | extradom

Joanna Skoczylas - Kunda

Porady, oferty, zamówienia

Jak zamówić projekt?

71 715 20 60

pn-pt 8-21, sb 9-18

Pow. użytkowa 115,5 m2 Kubatura 380 m3 Wysokość domu 8,22 m
Pow. zabudowy 122,5 m2 Min. szer. działki 21 m Kąt nach. dachu 38 st
Pow. dachu 196,7 m2
Projekt domu APS 242 progress

Opis projektu

APS 242 to piękny dom o klasycznym wyglądzie, w którym wygodnie się mieszka. Jego zaletą jest zwarta bryła o prostej konstrukcji, która będzie łatwa w budowie i ekonomiczna w eksploatacji. Osłonięte wejście prowadzi do dużego przedsionka z garderobą, znajduje się tam również przejście do garażu. Następnie przechodzimy do obszernego holu, a stamtąd do części dziennej, dodatkowego pokoju lub - schodami na górę. Od frontu zaprojektowano wygodną kuchnię, połączoną z salonem i jadalnią w wykuszu. Dzięki przeszkleniom w domu jest jasno i przestrzenie. Na poddaszu znajdują się trzy sypialnie i duża łazienka. Dodatkowym atutem jest strych na półpiętrze nad garażem, który można przeznaczyć na dodatkowe pokoje lub rekreację. Zobacz też: APS 229, APS 161, APS 234

Kup teraz projekt

Cena: 4499 zł

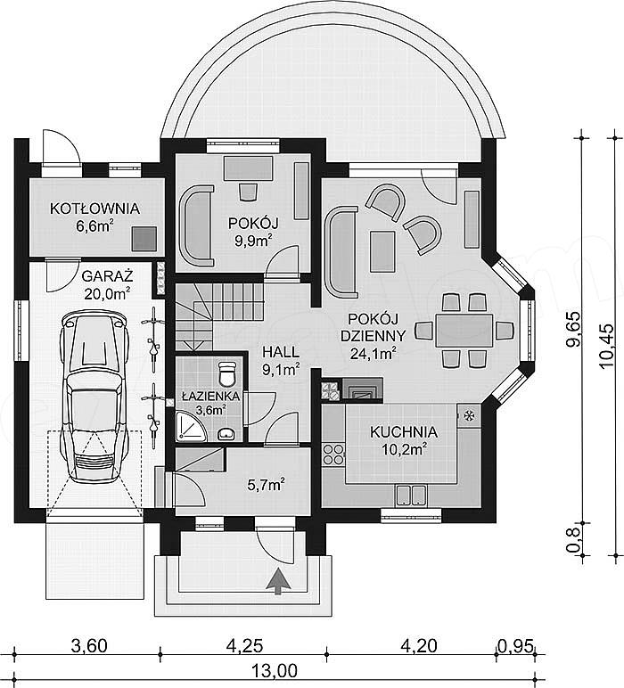
Rzut kondygnacji projektu APS 242 - Rzut parteru

1 wiatrołap: 5,7 m2
2 hall: 5,6 m2
3 łazienka: 3,6 m2
4 kuchnia: 10,2 m2
5 pokój dzienny: 24,1 m2
6 pokój: 9,9 m2
7 kotłownia: 6,6 m2
8 garaż jednostanowiskowy: 20 m2

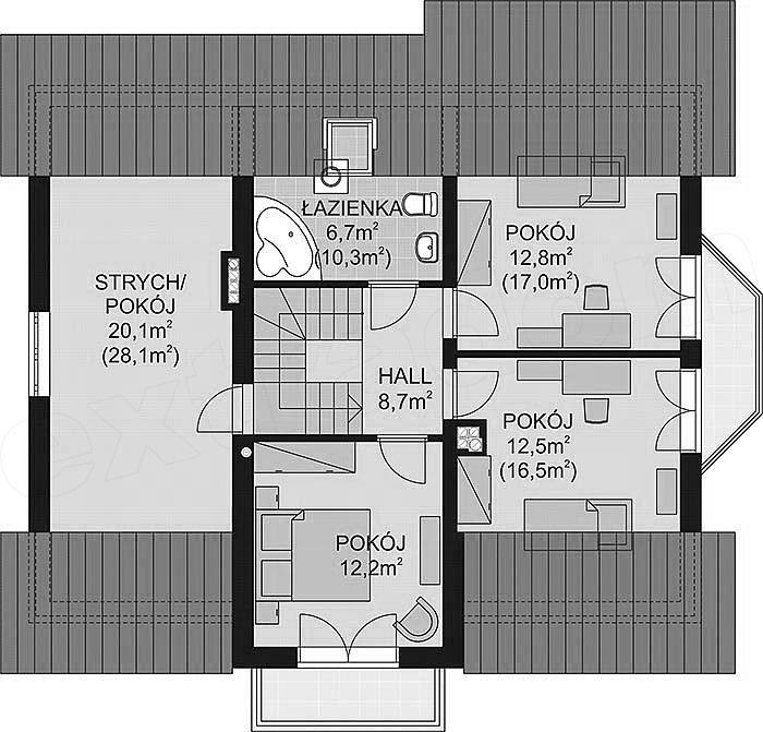
Rzut kondygnacji projektu APS 242 - Rzut poddasza

1 hall: 8,7 m2
2 pokój: 12,2 m2
3 pokój: 12,5 m2 (16,5 m2)
4 pokój: 12,8 m2 (17 m2)
5 łazienka: 6,7 m2 (10,3 m2)
6 strych: 20,1 m2 (28,1 m2)

Usytuowanie domu na działce

Technologia budowy domu


Ściany: pustaki ceramiczne Porotherm Dryfix + ocieplenie TERMOORGANIKA. Strop parteru: typu TERIVA. Strop poddasza: drewniany. Dach: dwuspadowy, kąt nachylenia 38 st. Pokrycie dachu: dachówka płaska Koramic Orea. Ocieplenie poddasza: wełna mineralna Rockwool. Tynk: mineralny. Okna dachowe: Velux. Ocieplenie ścian: Styropian Termoorganika.

Elewacje

autor: Archi-Projekt

Projekty podobne do APS 242 LUA1274

Serwis prowadzi Extradom.plRegulaminPolityka prywatności