Opis projektu
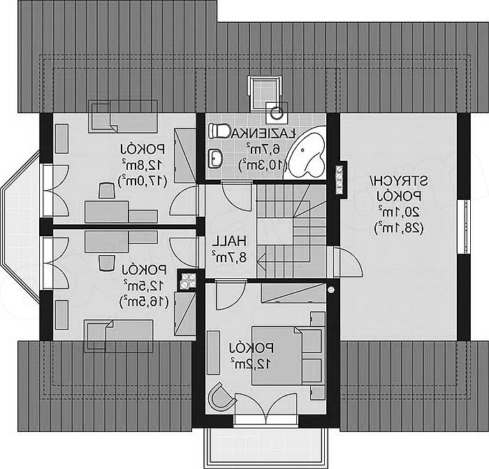
APS 242 to piękny dom o klasycznym wyglądzie, w którym wygodnie się mieszka. Jego zaletą jest zwarta bryła o prostej konstrukcji, która będzie łatwa w budowie i ekonomiczna w eksploatacji. Osłonięte wejście prowadzi do dużego przedsionka z garderobą, znajduje się tam również przejście do garażu. Następnie przechodzimy do obszernego holu, a stamtąd do części dziennej, dodatkowego pokoju lub - schodami na górę. Od frontu zaprojektowano wygodną kuchnię, połączoną z salonem i jadalnią w wykuszu. Dzięki przeszkleniom w domu jest jasno i przestrzenie. Na poddaszu znajdują się trzy sypialnie i duża łazienka. Dodatkowym atutem jest strych na półpiętrze nad garażem, który można przeznaczyć na dodatkowe pokoje lub rekreację. Zobacz też: APS 229, APS 161, APS 234